Klik på billedet for store billeder

Afdeling 4

Byvangen 35-37, 2-24 og 1-21, Langelinie 31-35, Dr Kabells Vej 16-22

32 rummelige boliger i ensartede dobbelthuse, opført i 1950. Hver enkelt bolig har en relativt stor, ugeneret have med dertilhørende terrasse.

Alle henvendelser om vedligeholdelse og renholdelse af bygninger og grønne områder sker til ejendomskontoret, der er beliggende Slåenvej 8b, Rønne.

Ejendomskontoret er åbent for personlig henvendelse: mandag-fredag mellem kl. 7.30-9.00.

 

 

Afdelingsformand

Glenn Leon Kure
Byvangen 1
25 56 60 65
glenn.kure@youmail.dk


Ejendomsmester
Morten Bech
5694 0704
mandag-fredag ml. kl. 7.30-9.00
mb@bo42.dk

 

Antal M2 Indskud Rum Leje
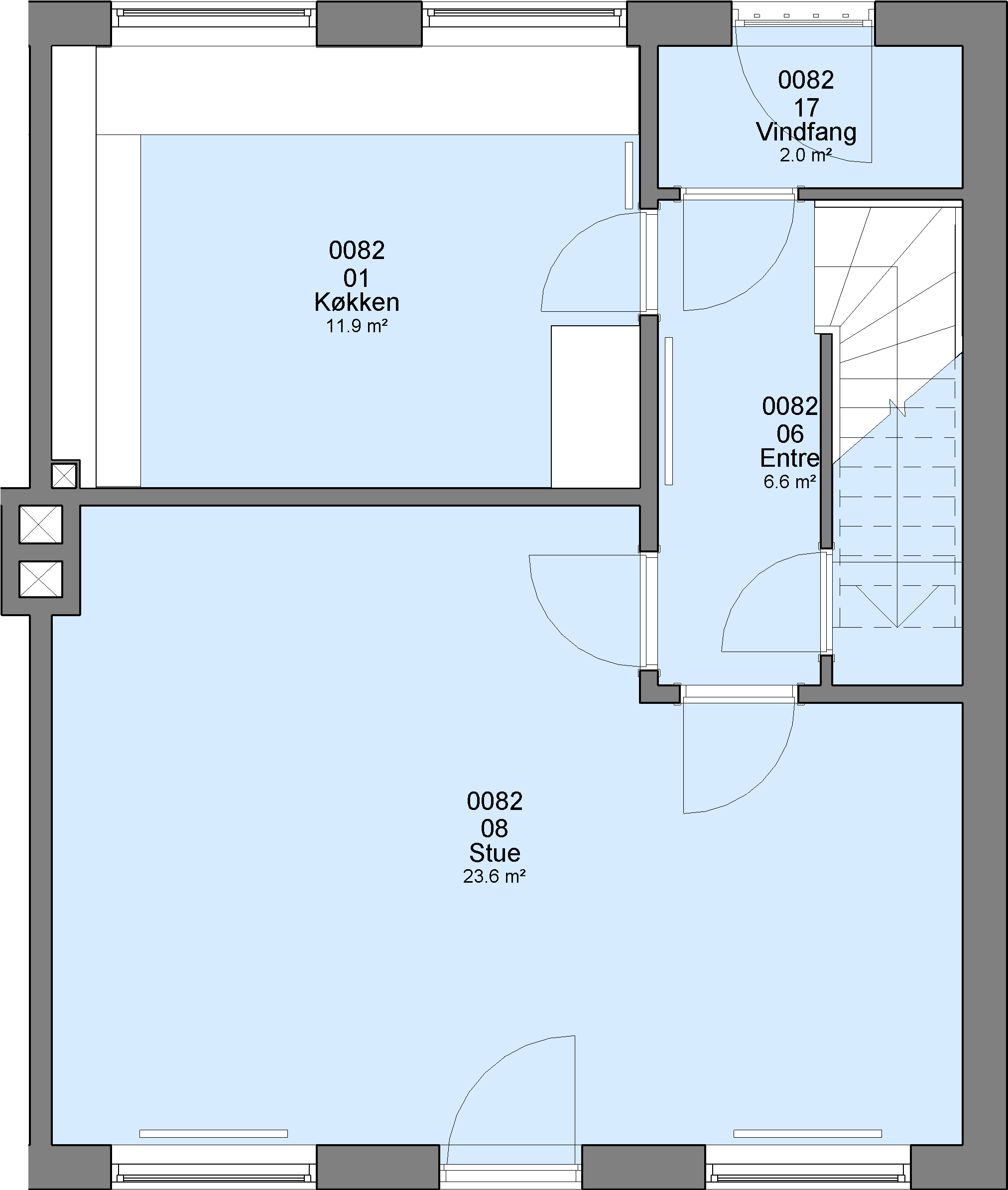
Plantegning 26 92 25.000 3 6.684
Plantegning 6 92 25.000 4 6.684
Der kan ikke opnås indskudslån fra kommunen
TrapperDer er indvendige trapper
ElevatorDer er ikke elevator
AltanDer er ikke altan
HaveDer er egen have
HusdyrHusdyrhold er tilladt
KøkkenElkomfur og emhætte
BadBrus
VarmeFjernvarme (egen fjernvarmeunit)
FællesvaskeriDer er ikke adgang til fællesvaskeri
RøgalarmDer er røgalarm i boligen (Brunata)

Afdeling 4

32 rummelige boliger i ensartede dobbelthuse, opført i 1950. Hver enkelt bolig har en relativt stor, ugeneret have med dertilhørende terrasse. Et roligt kvarter, ikke langt fra centrum.